KOS Parter
Kos Parter – funkcjonalny mały dom całoroczny z dużym pomieszczeniem gospodarczym
„Kos Parter” to kompaktowy i przemyślany projekt domu drewnianego, który doskonale spełni potrzeby singli lub par szukających małego, wygodnego i energooszczędnego domu całorocznego. Dzięki dużemu pomieszczeniu gospodarczemu, które można dostosować do indywidualnych potrzeb, ten dom łączy praktyczność z wyjątkowym komfortem.
To projekt, który idealnie sprawdzi się jako całoroczny dom dla pary, singla lub jako miejsce na weekendowe wyjazdy za miasto. Możliwość szybkiej budowy dzięki technologii prefabrykacji czyni „Kos Parter” świetnym wyborem dla osób, które chcą w krótkim czasie zamieszkać w swoim własnym małym domu.
Przemyślany układ wnętrz – komfort w małej przestrzeni
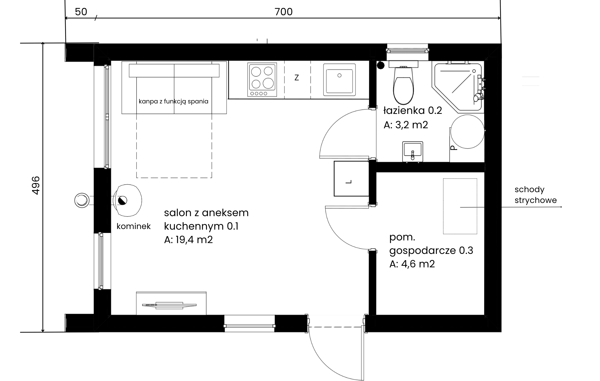
Dom „Kos Parter” został zaprojektowany tak, aby zapewnić maksymalny komfort i funkcjonalność w kompaktowym formacie. Parter obejmuje otwartą strefę dzienną, w której salon płynnie łączy się z kuchnią. Dzięki temu wnętrze wydaje się przestronne i przytulne, a duże okna zapewniają mnóstwo naturalnego światła.
Łazienka, mimo niewielkich rozmiarów, została zaplanowana w sposób ergonomiczny, oferując wszystko, czego potrzeba na co dzień. Największym atutem domu jest przestronne pomieszczenie gospodarcze, które można dostosować do własnych potrzeb. Może ono pełnić funkcję spiżarni, pralni, schowka na sprzęty domowe lub miejsca do realizacji pasji. To dodatkowe pomieszczenie sprawia, że dom jest wyjątkowo praktyczny i wygodny dla osób ceniących porządek i dobrze zorganizowaną przestrzeń.
Najważniejsze zalety domu „Kos Parter”
- Mały dom całoroczny – idealny dla singli lub par szukających wygodnego i funkcjonalnego miejsca do życia.
- Duże pomieszczenie gospodarcze – przestrzeń, którą można zaaranżować na różne sposoby, w zależności od potrzeb.
- Otwarta strefa dzienna – salon połączony z kuchnią tworzy przyjazną przestrzeń do codziennego życia.
- Naturalne materiały – drewniana konstrukcja gwarantuje zdrowy mikroklimat i ekologiczne wnętrze.
- Ściany dyfuzyjne – nowoczesne rozwiązanie, które reguluje wilgotność wewnątrz i poprawia efektywność energetyczną domu.
- Szybka budowa – prefabrykowane elementy pozwalają na realizację domu w zaledwie kilka tygodni.
- Energooszczędność – doskonała izolacja termiczna wpływa na obniżenie kosztów ogrzewania i chłodzenia.
- Dom na zgłoszenie – uproszczony proces realizacji bez konieczności uzyskiwania pozwolenia na budowę.
Przestronne pomieszczenie gospodarcze – praktyczność na co dzień
W projekcie „Kos Parter” zaplanowano duże pomieszczenie gospodarcze, które pozwala na wygodne przechowywanie rzeczy codziennego użytku, sprzętów sezonowych lub realizację pasji. Może być to miejsce na pralnię, spiżarnię, schowek lub przestrzeń roboczą – wszystko zależy od indywidualnych potrzeb mieszkańców. To rozwiązanie czyni „Kos Parter” wyjątkowo praktycznym, mimo jego niewielkich rozmiarów.
Ściany dyfuzyjne – zdrowe i energooszczędne wnętrze
Dzięki zastosowaniu ścian dyfuzyjnych w domu „Kos Parter”, wewnętrzna wilgotność jest zawsze na odpowiednim poziomie, co zapobiega kondensacji pary wodnej i powstawaniu pleśni. Naturalny przepływ powietrza przez ściany tworzy zdrowy mikroklimat, a doskonała izolacja cieplna zmniejsza zapotrzebowanie na energię, co przekłada się na niższe koszty utrzymania domu.
Ekologia i szybka realizacja
Dom drewniany „Kos Parter” jest ekologiczny i szybki w budowie. Konstrukcja wykonana z drewna jest przyjazna środowisku i sprzyja zdrowemu stylowi życia. Dzięki prefabrykacji elementów budowa domu trwa zaledwie kilka tygodni, co czyni ten projekt idealnym dla osób, które nie chcą czekać zbyt długo na realizację swoich marzeń o własnym małym domu.
Dla kogo jest projekt „Kos Parter”?
„Kos Parter” to idealny mały dom całoroczny dla singli i par, którzy szukają praktycznego i wygodnego miejsca do życia. Dzięki dużemu pomieszczeniu gospodarczemu, otwartej strefie dziennej i energooszczędnym rozwiązaniom, ten projekt doskonale łączy funkcjonalność z komfortem. To także świetny wybór dla osób, które cenią szybki czas realizacji i ekologię.
Poznaj konstrukcję domu KOS PARTER
Decydując się na budowę z nami, otrzymujesz kompleksowo przygotowany dom w stanie deweloperskim – bez niedomówień i kompromisów.
W standardzie zapewniamy m.in.:
- ściany zewnętrzne i wewnętrzne,
- stolarkę okienną oraz drzwi wejściowe,
- instalację elektryczną i hydrauliczną,
- estetycznie wykończoną elewację, gotową na lata.
Poniżej znajdziesz pełny opis technologii budowy – przejrzyście i szczegółowo pokazujemy, z czego i jak powstaje Twój dom.
Konstrukcja ścian zewnętrznych

| Warstwa / Technologia E2 | Grubość |
|---|---|
| Tynk nanosilikonowy, siatka elewacyjna, klej zbrojony włóknem | 10 mm |
| Listwa startowa / styropian XPS* / wełna elewacyjna / membrana EPDM** | 50 mm |
| Płyta Riduro | 12,5 mm |
| Wełna izolacyjna λ≤0,037 | 150 mm |
| Drewno konstrukcyjne C24 [60x145] zabezpieczone folią izolacyjną [izolacja pozioma ściany - zgrzewana do fundamentu papa fundamentowa + folia izolacyjna od spodu ściany] | 145 mm |
| Folia paroizolacyjna | 1 mm |
| Ruszt na przedściankę instalacyjną [45x45] | 45 mm |
| Płyta Duraline | 12,5 mm |
*Styropian XPS nie jest stosowany jako jedna z warstw ściany, lecz jako 50-centymetrowy pas izolacyjny umieszczony w dolnej części ściany, na styku fundamentu i ściany właściwej.
**Pas uszczelniający z membrany EPDM montowany do dolnej krawędzi ściany i wyklejany na fundament/płytę fundamentową skutecznie chroni konstrukcję przed wilgocią.
Konstrukcja ścian wewnętrznych

| Rodzaj ściany | Nośna | Działowa |
|---|---|---|
| Płyta Duraline | 12,5 mm | 12,5 mm |
| Drewno konstrukcyjne C24 | 45x145 mm | 45x95 mm |
| Wełna izolacyjna | 150 mm | 100 mm |
| Płyta Duraline | 12,5 mm | 12,5 mm |
Konstrukcja dachu przy poddaszu nieużytkowym

| Warstwa | Grubość |
|---|---|
| Blachodachówka | 20–32 mm |
| Łaty | kontrłaty | 40x60 | 25x50 mm |
| Membrana dachowa | 1 mm |
| Krokwie dachowe | 195 mm |
Konstrukcja stropu
| Warstwa | Grubość |
|---|---|
| Płyta OSB (tylko w części strychu) | 22 mm |
| Konstrukcja drewniana | wg projektu |
| Wełna izolacyjna λ≤0,038 | 200 mm |
| Wełna izolacyjna λ≤0,038 | 100 mm |
| Ruszt | CD 60|UD 30 |
| Folia paroizolacyjna | 1 mm |
| Płyta GKF | 12,5 mm |
Konstrukcja płyty fundamentowej i podłogi do stanu „0”

| Warstwa | Grubość |
|---|---|
| Wylewka cementowa | 60–70 mm |
| Termoizolacja (PIR + EPS 80) | 100 mm |
| Folia budowlana | 1 mm |
| Płyta fundamentowa (żelbetowa) | 250 mm |
| Izolacja przeciwwilgociowa | 10 mm |
| Chudy beton | 100 mm |
| Podsypka piaskowa (zagęszczona) | w zależności od gruntu |
Wszystkie informacje zawarte na stronie, a w szczególności na wizualizacjach budynków mają jedynie charakter informacyjny, nie są prawnie wiążące i nie stanowią oferty handlowej w rozumieniu art. 66 §1 Kodeksu Cywilnego
-
Powierzchnia użytkowa: 27.2 m2
-
Powierzchnia całkowita: 34.72 m2
-
Powierzchnia zabudowy: 34.72 m2
-
Minimalna pow. działki: 13x14 m2
-
Kąt nachylenia dachu: 34 o
-
Ilość kondygnacji: 1
-
Ilość sypialni: 0
-
Ilość łazienek: 1
Chcesz poznać koszty budowy?
zamów bezpłatną wycenę