KAWKA Poddasze (oddzielna kuchnia)
Kawka poddasze oddzielna kuchnia – funkcjonalny dom drewniany na zgłoszenie
„Kawka poddasze oddzielna kuchnia” to projekt idealny dla par, singli lub małych rodzin, które poszukują funkcjonalnego i przytulnego domu w kompaktowym formacie. Dom wyróżnia się nowoczesnymi rozwiązaniami, w tym ścianami dyfuzyjnymi, które zapewniają zdrowy mikroklimat, oraz oddzielną kuchnią, co czyni go wyjątkowo wygodnym i praktycznym. Dodatkowo, to projekt domu, który można wybudować na zgłoszenie, co znacznie przyspiesza proces realizacji i redukuje formalności.
Przemyślany układ pomieszczeń – wygoda w kompaktowej formie
Projekt „Kawka poddasze oddzielna kuchnia” został zaprojektowany z myślą o maksymalnym komforcie mieszkańców. Parter domu pełni funkcję strefy dziennej, gdzie znajduje się jasny salon z dużymi oknami, zapewniającymi mnóstwo naturalnego światła. Salon jest przestrzenią do wspólnego relaksu i rodzinnych spotkań, a możliwość zamontowania pieca wolnostojącego dodaje wnętrzu przytulności i tworzy niepowtarzalny klimat domowego ogniska. Na tym poziomie znajduje się także toaleta.
Oddzielna kuchnia to jeden z największych atutów projektu. Dzięki jej odseparowaniu od strefy wypoczynkowej przygotowywanie posiłków jest bardziej komfortowe, a zapachy z gotowania nie rozprzestrzeniają się na resztę domu. To rozwiązanie docenią osoby, które lubią gotować i cenią sobie porządek w strefie dziennej.
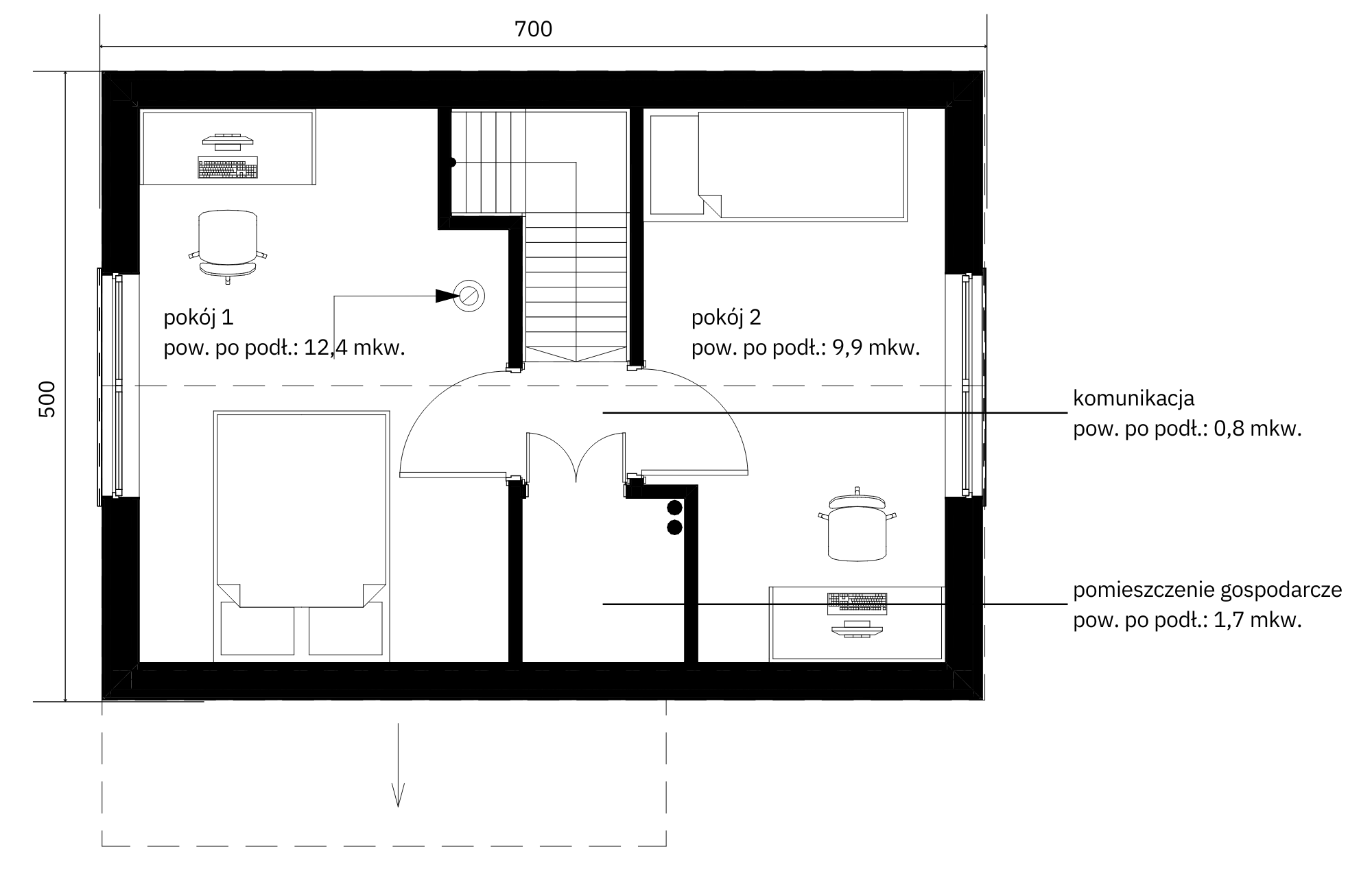
Na poddaszu domu zaplanowano dwie sypialnie. Układ przestrzeni jest elastyczny, co pozwala dostosować pomieszczenia do indywidualnych potrzeb mieszkańców. Jedna sypialnia może pełnić funkcję głównej sypialni, a druga – pokoju dziecięcego, gabinetu do pracy lub pokoju gościnnego. Taki układ sprawia, że dom świetnie sprawdzi się zarówno dla par, jak i małych rodzin z jednym dzieckiem. Na tej kondygnacji zaprojektowano także niewielkie pomieszczenie gospodarcze, idealne jako schowek na przedmioty sezonowe czy dodatkowe miejsce do przechowywania.
Najważniejsze zalety domu „Kawka poddasze oddzielna kuchnia”
- Dwie sypialnie na poddaszu – idealne dla par, małych rodzin lub singli, z możliwością elastycznego zagospodarowania przestrzeni.
- Oddzielna kuchnia – praktyczne rozwiązanie, które zwiększa wygodę codziennego użytkowania.
- Salon z możliwością montażu pieca wolnostojącego – estetyczne i funkcjonalne rozwiązanie dodające przytulności wnętrzu.
- Ściany dyfuzyjne – nowoczesne rozwiązanie, które pozwala domowi „oddychać”, zapewniając zdrowy mikroklimat i odpowiednią wilgotność wewnątrz.
- Dom na zgłoszenie – szybki proces budowy bez konieczności uzyskiwania pozwolenia na budowę.
- Naturalne materiały – drewno jako główny materiał konstrukcyjny gwarantuje ekologiczność i przyjazność środowisku.
- Szybka realizacja – prefabrykowane elementy pozwalają na budowę domu w zaledwie kilka tygodni.
Ściany dyfuzyjne – zdrowy mikroklimat i oszczędność
Dom „Kawka poddasze oddzielna kuchnia” wykorzystuje innowacyjne ściany dyfuzyjne, które umożliwiają naturalny przepływ pary wodnej przez przegrody budowlane. Dzięki temu we wnętrzu utrzymuje się optymalny poziom wilgotności, co zapobiega kondensacji pary wodnej i powstawaniu pleśni. To rozwiązanie sprzyja zdrowiu mieszkańców, a także zwiększa trwałość konstrukcji. Co więcej, ściany dyfuzyjne zapewniają doskonałą termoizolację, co przekłada się na niższe koszty ogrzewania.
Ekologia i oszczędność w każdym detalu
Prefabrykowany dom drewniany „Kawka poddasze oddzielna kuchnia” to inwestycja, która łączy nowoczesne technologie z szacunkiem dla środowiska. Drewno, jako główny materiał konstrukcyjny, pochodzi ze sprawdzonych źródeł i jest w pełni odnawialne. Dzięki doskonałej izolacji termicznej dom jest energooszczędny, co przekłada się na niższe rachunki i mniejsze zużycie energii.
Dla kogo jest projekt „Kawka poddasze oddzielna kuchnia”?
„Kawka poddasze oddzielna kuchnia” to projekt stworzony z myślą o parach, singlach oraz małych rodzinach z jednym dzieckiem. Elastyczny układ wnętrz pozwala na dostosowanie przestrzeni do indywidualnych potrzeb, co czyni ten dom niezwykle uniwersalnym. Oddzielna kuchnia, dwie przytulne sypialnie oraz możliwość budowy na zgłoszenie sprawiają, że jest to idealna propozycja dla osób, które szukają funkcjonalnego domu w zgodzie z naturą.
Poznaj konstrukcję domu KAWKA PODDASZE Z ODDZIELNĄ KUCHNIĄ
Decydując się na budowę z nami, otrzymujesz kompleksowo przygotowany dom w stanie deweloperskim – bez niedomówień i kompromisów.
W standardzie zapewniamy m.in.:
- instalację elektryczną i hydrauliczną,
- ściany zewnętrzne i wewnętrzne,
- stolarkę okienną oraz drzwi wejściowe,
- estetycznie wykończoną elewację, gotową na lata.
Poniżej znajdziesz pełny opis technologii budowy – przejrzyście i szczegółowo pokazujemy, z czego i jak powstaje Twój dom.
Konstrukcja ścian zewnętrznych

| Warstwa / Technologia E2 | Grubość |
|---|---|
| Tynk nanosilikonowy, siatka elewacyjna, klej zbrojony włóknem | 10 mm |
| Listwa startowa / styropian XPS* / wełna elewacyjna / membrana EPDM** | 50 mm |
| Płyta Riduro | 12,5 mm |
| Wełna izolacyjna λ≤0,037 | 150 mm |
| Drewno konstrukcyjne C24 [60x145] zabezpieczone folią izolacyjną [izolacja pozioma ściany - zgrzewana do fundamentu papa fundamentowa + folia izolacyjna od spodu ściany] | 145 mm |
| Folia paroizolacyjna | 1 mm |
| Ruszt na przedściankę instalacyjną [45x45] | 45 mm |
| Płyta Duraline | 12,5 mm |
*Styropian XPS nie jest stosowany jako jedna z warstw ściany, lecz jako 50-centymetrowy pas izolacyjny umieszczony w dolnej części ściany, na styku fundamentu i ściany właściwej.
**Pas uszczelniający z membrany EPDM montowany do dolnej krawędzi ściany i wyklejany na fundament/płytę fundamentową skutecznie chroni konstrukcję przed wilgocią.
Konstrukcja ścian wewnętrznych

| Rodzaj ściany | Nośna | Działowa |
|---|---|---|
| Płyta Duraline | 12,5 mm | 12,5 mm |
| Drewno konstrukcyjne C24 | 45x145 mm | 45x95 mm |
| Wełna izolacyjna | 150 mm | 100 mm |
| Płyta Duraline | 12,5 mm | 12,5 mm |
Konstrukcja dachu

| Warstwa | Grubość |
|---|---|
| Blachodachówka | 20–32 mm |
| Łaty | kontrłaty | 40x60 | 25x50 mm |
| Membrana dachowa | 1 mm |
| Krokwie dachowe wypełnione wełną izolacyjną | 195 | 200 mm |
| Wełna izolacyjna | 100 mm |
| Ruszt | CD 60 | UD 30 |
| Folia paroizolacyjna | 1 mm |
| Płyta GKF | 12,5 mm |
Konstrukcja stropu
| Warstwa | Grubość |
|---|---|
| Płyta OSB | 22 mm |
| Konstrukcja drewniana | wg projektu |
| Wełna izolacyjna λ≤0,038 | 200 mm |
| Ruszt | CD 60 | UD 30 |
| Folia paroizolacyjna | 1 mm |
| Płyta GKF | 12,5 mm |
Konstrukcja płyty fundamentowej i podłogi do stanu „0”

| Warstwa | Grubość |
|---|---|
| Wylewka cementowa | 60–70 mm |
| Termoizolacja (PIR + EPS 80) | 100 mm |
| Folia budowlana | 1 mm |
| Płyta fundamentowa (żelbetowa) | 250 mm |
| Izolacja przeciwwilgociowa | 10 mm |
| Chudy beton | 100 mm |
| Podsypka piaskowa (zagęszczona) | w zależności od gruntu |
Wszystkie informacje zawarte na stronie, a w szczególności na wizualizacjach budynków mają jedynie charakter informacyjny, nie są prawnie wiążące i nie stanowią oferty handlowej w rozumieniu art. 66 §1 Kodeksu Cywilnego
-
Powierzchnia użytkowa: 46 m2
-
Powierzchnia całkowita: 70 m2
-
Powierzchnia zabudowy: 35 m2
-
Minimalna pow. działki: 13 x 15 m2
-
Kąt nachylenia dachu: 34 o
-
Ilość kondygnacji: 2
-
Ilość sypialni: 2
-
Ilość łazienek: 1
Chcesz poznać koszty budowy?
zamów bezpłatną wycenę