KAWKA Poddasze (z dużym pomieszczeniem gospodarczym)
Kawka poddasze z dużym pomieszczeniem gospodarczym – praktyczny dom drewniany na zgłoszenie
„Kawka poddasze z dużym pomieszczeniem gospodarczym” to projekt, który wyróżnia się funkcjonalnym układem, przemyślanymi rozwiązaniami oraz zastosowaniem nowoczesnych technologii, takich jak ściany dyfuzyjne. Dzięki nim dom zapewnia zdrowy mikroklimat i wysoki komfort mieszkania. Obecność dużego pomieszczenia gospodarczego na parterze i dodatkowego schowka na poddaszu sprawia, że ten kompaktowy dom drewniany spełni oczekiwania rodzin, par oraz singli. Dodatkowo jest to dom, który można wybudować na zgłoszenie, co znacząco przyspiesza proces realizacji i upraszcza formalności.
Przemyślany układ wnętrz – wygoda na co dzień
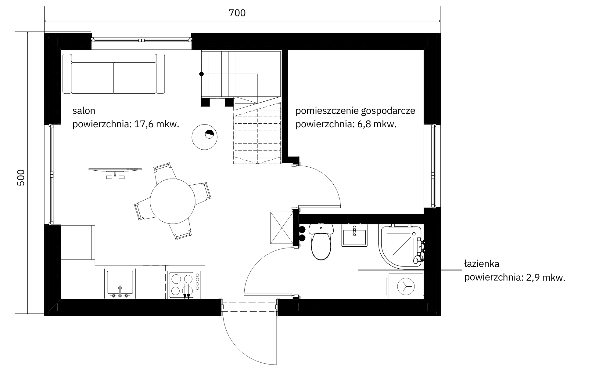
Projekt „Kawka poddasze z dużym pomieszczeniem gospodarczym” został zaprojektowany z myślą o maksymalnej funkcjonalności. Na parterze znajduje się otwarta strefa dzienna, w której salon płynnie łączy się z kuchnią. Taki układ sprzyja wspólnemu spędzaniu czasu i integracji domowników, jednocześnie zapewniając jasne, pełne światła wnętrze dzięki dużym przeszkleniom. Możliwość zamontowania pieca wolnostojącego w salonie dodaje przestrzeni przytulności i ciepła, a także stanowi dodatkowe źródło ogrzewania.
Duże pomieszczenie gospodarcze na parterze to jedna z największych zalet tego projektu. Pomieszczenie to można wykorzystać jako przestrzeń do przechowywania narzędzi, sprzętów domowych, rowerów czy urządzeń sezonowych. Może ono również pełnić funkcję pralni lub dodatkowej spiżarni. Jego pojemność i dostępność na parterze sprawiają, że jest niezwykle praktyczne i zwiększa komfort użytkowania domu. Na tym piętrze znajduje się także toaleta.
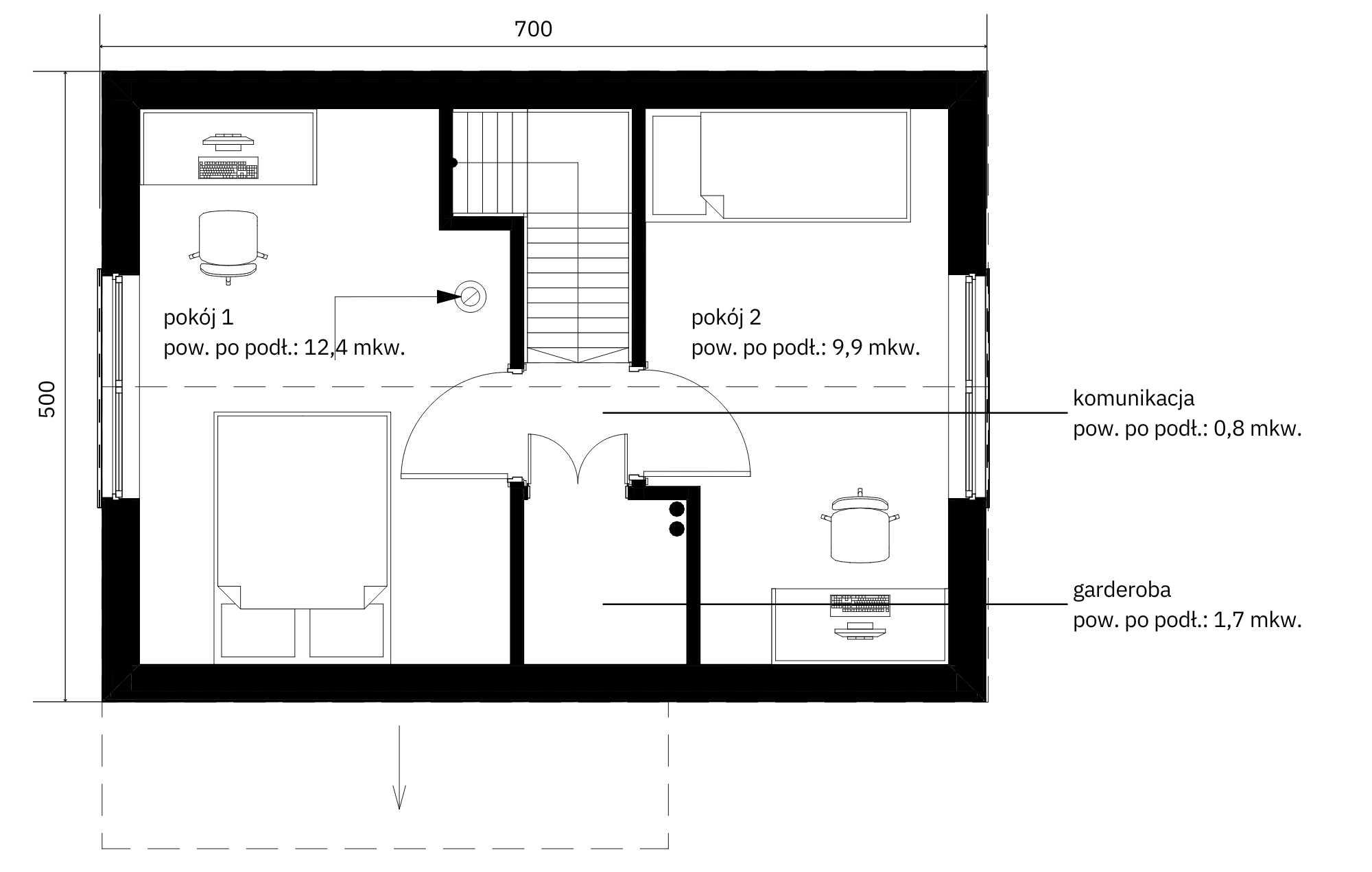
Na poddaszu domu znajduje się strefa prywatna z dwiema sypialniami. Jedna z nich może pełnić funkcję głównej sypialni, a druga – pokoju dziecięcego, gabinetu do pracy lub pokoju gościnnego. Dodatkowo na poddaszu znajduje się małe pomieszczenie gospodarcze, idealne jako schowek na rzeczy sezonowe, pościel czy zapasy.
Najważniejsze zalety domu „Kawka poddasze z dużym pomieszczeniem gospodarczym”
- Duże pomieszczenie gospodarcze na parterze – wygodne miejsce do przechowywania większych sprzętów i organizacji przestrzeni.
- Dwie sypialnie na poddaszu – możliwość dostosowania ich do indywidualnych potrzeb mieszkańców.
- Salon z kuchnią – otwarta strefa dzienna sprzyjająca wspólnemu spędzaniu czasu.
- Małe pomieszczenie gospodarcze na poddaszu – dodatkowy schowek zwiększa funkcjonalność domu.
- Ściany dyfuzyjne – zapewniają zdrowy mikroklimat wewnątrz, idealny dla rodzin i osób ceniących komfort.
- Możliwość montażu pieca wolnostojącego – dodatkowe źródło ogrzewania, które podkreśla przytulność wnętrza.
- Dom na zgłoszenie – prostszy i szybszy proces budowy bez konieczności uzyskiwania pozwolenia.
- Ekologiczne materiały – drewno jako główny materiał konstrukcyjny gwarantuje zdrowe i przyjazne środowisko wnętrze.
- Szybka realizacja – dzięki prefabrykacji dom może być gotowy w zaledwie kilka tygodni.
Ściany dyfuzyjne – zdrowy mikroklimat i energooszczędność
W projekcie „Kawka poddasze z dużym pomieszczeniem gospodarczym” zastosowano innowacyjne ściany dyfuzyjne, które umożliwiają naturalny przepływ pary wodnej przez przegrody budowlane. Dzięki temu wewnątrz domu utrzymuje się optymalny poziom wilgotności, co zapobiega powstawaniu pleśni i kondensacji pary wodnej. To rozwiązanie sprzyja zdrowiu mieszkańców i zapewnia długą trwałość konstrukcji. Dodatkowo ściany dyfuzyjne poprawiają właściwości termoizolacyjne domu, co przekłada się na niższe rachunki za ogrzewanie i większy komfort cieplny o każdej porze roku.
Ekologia i wygoda w każdym detalu
Prefabrykowany dom drewniany „Kawka poddasze z dużym pomieszczeniem gospodarczym” to doskonałe połączenie nowoczesnej technologii z drewna. Materiały użyte do budowy pochodzą ze sprawdzonych, ekologicznych źródeł, a sama prefabrykacja minimalizuje ilość odpadów budowlanych. Energooszczędna konstrukcja pozwala cieszyć się niskimi kosztami eksploatacji, a zastosowanie drewna tworzy zdrowy mikroklimat, idealny dla rodzin.
Dla kogo jest projekt „Kawka poddasze z dużym pomieszczeniem gospodarczym”?
Ten projekt to idealne rozwiązanie dla rodzin z jednym dzieckiem, par lub singli, którzy potrzebują praktycznego i funkcjonalnego domu. Duże pomieszczenie gospodarcze na parterze i niewielki schowek na poddaszu zapewniają wygodę codziennego życia, a elastyczny układ sypialni pozwala na dostosowanie przestrzeni do indywidualnych potrzeb. Możliwość budowy na zgłoszenie oraz szybki czas realizacji sprawiają, że to dom dla tych, którzy cenią czas, wygodę i ekologiczne rozwiązania.
Poznaj konstrukcję domu KAWKA PODDASZE Z DUŻYM POMIESZCZENIEM GOSPODARCZYM
Decydując się na budowę z nami, otrzymujesz kompleksowo przygotowany dom w stanie deweloperskim – bez niedomówień i kompromisów.
W standardzie zapewniamy m.in.:
- instalację elektryczną i hydrauliczną,
- ściany zewnętrzne i wewnętrzne,
- stolarkę okienną oraz drzwi wejściowe,
- estetycznie wykończoną elewację, gotową na lata.
Poniżej znajdziesz pełny opis technologii budowy – przejrzyście i szczegółowo pokazujemy, z czego i jak powstaje Twój dom.
Konstrukcja ścian zewnętrznych

| Warstwa / Technologia E2 | Grubość |
|---|---|
| Tynk nanosilikonowy, siatka elewacyjna, klej zbrojony włóknem | 10 mm |
| Listwa startowa / styropian XPS* / wełna elewacyjna / membrana EPDM** | 50 mm |
| Płyta Riduro | 12,5 mm |
| Wełna izolacyjna λ≤0,037 | 150 mm |
| Drewno konstrukcyjne C24 [60x145] zabezpieczone folią izolacyjną [izolacja pozioma ściany - zgrzewana do fundamentu papa fundamentowa + folia izolacyjna od spodu ściany] | 145 mm |
| Folia paroizolacyjna | 1 mm |
| Ruszt na przedściankę instalacyjną [45x45] | 45 mm |
| Płyta Duraline | 12,5 mm |
*Styropian XPS nie jest stosowany jako jedna z warstw ściany, lecz jako 50-centymetrowy pas izolacyjny umieszczony w dolnej części ściany, na styku fundamentu i ściany właściwej.
**Pas uszczelniający z membrany EPDM montowany do dolnej krawędzi ściany i wyklejany na fundament/płytę fundamentową skutecznie chroni konstrukcję przed wilgocią.
Konstrukcja ścian wewnętrznych

| Rodzaj ściany | Nośna | Działowa |
|---|---|---|
| Płyta Duraline | 12,5 mm | 12,5 mm |
| Drewno konstrukcyjne C24 | 45x145 mm | 45x95 mm |
| Wełna izolacyjna | 150 mm | 100 mm |
| Płyta Duraline | 12,5 mm | 12,5 mm |
Konstrukcja dachu

| Warstwa | Grubość |
|---|---|
| Blachodachówka | 20–32 mm |
| Łaty | kontrłaty | 40x60 | 25x50 mm |
| Membrana dachowa | 1 mm |
| Krokwie dachowe wypełnione wełną izolacyjną | 195 | 200 mm |
| Wełna izolacyjna | 100 mm |
| Ruszt | CD 60 | UD 30 |
| Folia paroizolacyjna | 1 mm |
| Płyta GKF | 12,5 mm |
Konstrukcja stropu
| Warstwa | Grubość |
|---|---|
| Płyta OSB | 22 mm |
| Konstrukcja drewniana | wg projektu |
| Wełna izolacyjna λ≤0,038 | 200 mm |
| Ruszt | CD 60 | UD 30 |
| Folia paroizolacyjna | 1 mm |
| Płyta GKF | 12,5 mm |
Konstrukcja płyty fundamentowej i podłogi do stanu „0”

| Warstwa | Grubość |
|---|---|
| Wylewka cementowa | 60–70 mm |
| Termoizolacja (PIR + EPS 80) | 100 mm |
| Folia budowlana | 1 mm |
| Płyta fundamentowa (żelbetowa) | 250 mm |
| Izolacja przeciwwilgociowa | 10 mm |
| Chudy beton | 100 mm |
| Podsypka piaskowa (zagęszczona) | w zależności od gruntu |
Wszystkie informacje zawarte na stronie, a w szczególności na wizualizacjach budynków mają jedynie charakter informacyjny, nie są prawnie wiążące i nie stanowią oferty handlowej w rozumieniu art. 66 §1 Kodeksu Cywilnego
-
Powierzchnia użytkowa: 45.9 m2
-
Powierzchnia całkowita: 70 m2
-
Powierzchnia zabudowy: 35 m2
-
Minimalna pow. działki: 13 x 15 m2
-
Kąt nachylenia dachu: 34 o
-
Ilość kondygnacji: 2
-
Ilość sypialni: 2
-
Ilość łazienek: 1
Chcesz poznać koszty budowy?
zamów bezpłatną wycenę